Capannone in vendita

Aprilia, Via Nettunense
€ 1.800.000
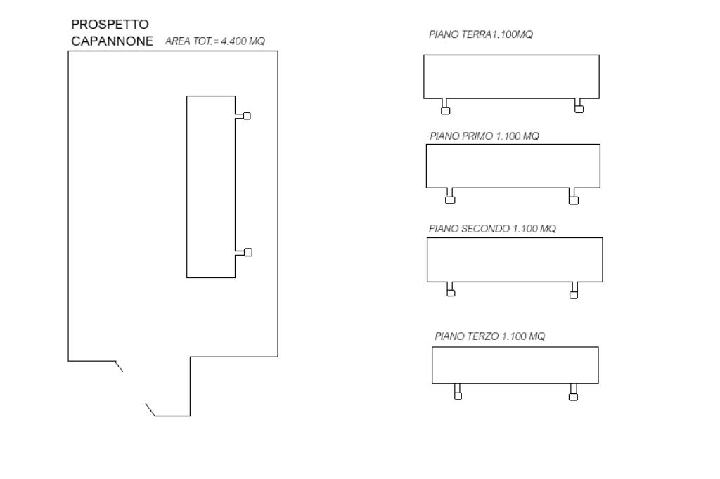
4400 Mq 4400 Mq
25 bagni 25 bagni

Capannone in vendita

Aprilia, Via Nettunense

Descrizione annuncio

Aprilia-Via Nettunense.

Fabbricato commerciale allo stato grezzo disposto su quattro livelli di 1.100 mq ciascuno, per una superficie totale di 4.400 mq. con annesso parcheggio di 2600 mq coperto ed area pertinenziale di

Ogni livello è allo stato attuale suddiviso in vari ambienti finestrati con ingresso dal corpo scala principale. Presente una scala di servizio su ogni piano.

Visionabile tutti i giorni previo appuntamento telefonico, dal lunedì al sabato. Ricordiamo di seguito i nostri orari di apertura dal lunedì al venerdì 08:30-13:00 15:30-19:00. Il sabato 8,30 -13.00
La nostra area di competenza si riferisce ai Comuni di Aprilia, Anzio e Nettuno. Valutazione e consulenza immobiliare totalmente gratuiti. Per maggiori informazioni potete contattarci ai nostri recapiti:
cel. 3440321764
mail. lthv1

Mostra tutto

Nelle vicinanze

Trasporto pubblico Trasporto pubblico
Aprilia
Aprilia
1,2 Km
stazione di Aprilia
stazione di Aprilia
1,2 Km
Aprilia Belvedere
Aprilia Belvedere
1,4 Km
Aprilia De Gasperi
Aprilia De Gasperi
1,5 Km
Ricariche auto elettriche Ricariche auto elettriche
McDonald's Aprilia Mascagni | EnelX
1,4 Km
Scuole Scuole
Scuola Primaria "Montarelli"
650 m
Asilo Nido "Domenico D'Alessio"
1,3 Km
Istituto Comprensivo "Giovanni Pascoli"
1,4 Km
Istituto Professionale per l'Industria e l'Artigianato "Enrico Mattei"
1,5 Km
Scuola Media A. Gramsci
1,6 Km
Farmacia Farmacia
Napolitano
2,2 Km
Farmacia
2,5 Km
Ospedali Ospedali
Ospedali
1,1 Km
Casa di Cura Città di Aprilia
1,2 Km
San Michele Hospital
1,6 Km
Casa di Cura Villa Silvana
2,3 Km
Casa di Cura Villa Clara
2,4 Km
Supermercati Supermercati
Esselunga
1,0 Km
Iper Coop
1,4 Km
EuroSpin
1,4 Km
Lidl
1,5 Km
Pam
2,1 Km
Negozi Negozi
OVS
770 m
Conbipel
1,0 Km
Intelligent Store
1,2 Km
Ristoranti Ristoranti
Il Focarile
930 m
Tavole calde
1,5 Km
Torre Cristina
2,0 Km
Ristoranti
2,0 Km
Ristorante Il Gallo D'Oro
2,1 Km
Mostra tutto

Caratteristiche

Rif.:
61193825
Piano:
4 di 4 (Piano su più livelli)
Posti auto:
35
Condizionamento:
Assente
Riscaldamento:
Assente
Libero:
Mostra tutto
Prezzo Prezzo
€ 1.800.000
Rata mutuo Rata mutuo
€ 8.510 / mese
Proponi il tuo prezzoProponi il tuo prezzo

Altre caratteristiche

Descrizione dei locali
Bagno Con Finestra

Classe Energetica

Questo immobile è esente da classe energetica
Riscaldamento:
Assente

Ti interessa visionare l'immobile?

Fissa un appuntamento  Fissa un appuntamento

Richiedi informazioni

Clicca su Leggi per aprire l'informativa
* Questi campi sono obbligatori

Calcola il tuo mutuo

Semplice e senza impegno
Anticipo

( % )
Mutuo

( % )

pochi semplici passi

inserisci i tuoi dati
Questionario completato
Grazie per aver richiesto un appuntamento senza impegno con un nostro Consulente del Credito e Assicurativo.

Hai inserito correttamente tutti i dati necessari e a breve riceverai una e-mail con un link da convalidare per inviare i tuoi dati.
Affiliato
Immobili Per L'Impresa Srl
Via Genio Civile, 493/495 04011 Aprilia (LT)

Il nostro staff


  • Claudia Saurini
    Responsabile
Via Genio Civile, 493/495 04011 Aprilia (LT)
Zona: Aprilia-Anzio-Nettuno
Mostra su mappa
Orari: dal lunedì al sabato 8:30-13:00 / 15:30 - 19:00
Affiliato
Immobili Per L'Impresa Srl
Via Genio Civile, 493/495 04011 Aprilia (LT)

2026 Tecnocasa Franchising S.p.A. - P. IVA 08365160152 - Via Monte Bianco 60/A 20089 Rozzano (MI). Ogni agenzia ha un proprio titolare ed è autonoma. Privacy policy | Policy utilizzo | Cookie policy